广晟服务热线:13573670168
0536-6808888
Banner

气浮机成套设备现场案例

一、气浮机成套设备现场案例

微信图片_20200505134855_副本.jpg

2b04392fce6969f8b77f92f2c3f5f96.jpg

二、气浮机成套设备工艺:

  气浮机成套设备主要处理工艺采用物理化学法。将化学法、气浮法、过滤吸附法等传统成熟工艺经过有机组合设计而成。具有工艺简单合理、适应性广、结构紧凑、运输安装方便、操作简便、性能稳定可靠的特点。对油水分离,悬浮物、COD、BOD的去除有很好的效果,一般废水经处理后都能达到排放标准。

07d7272c5a9267ba7692372839aead3.jpg

三、气浮机成套设备工作原理

  溶气罐产生溶气水,溶气水通过释放器减压释放到待处理的水中。溶解在水中的空气从水中释放出来,形成20-40um的微小细泡,微气泡同污水中的悬浮物结合,使悬浮物比重小于水,并逐渐浮到水面形成浮渣。水面上备有刮板系统,将浮渣刮入污泥池。清水从下部经溢流槽进入清水池。

 污水中的污染物分为溶解性有机物和非溶解性物质(即SS),溶解性有机物在一定条件下,可以转化为非溶液解性物质,污水处理的方法之一就是加入混凝剂和絮凝剂使大部分溶解性有机物转达化为非溶解性物质,再将全部或大部分非溶液解性物质(即SS)去除以达到净化污水的目的,而去除SS的主要方法就是利用气浮的方法。 

  气浮时向水中曝气,对去除水中的表面活性剂及臭味有明显的效果,同时由于曝气增加了水中的溶解氧,为后续处理提供了有利条件。

 

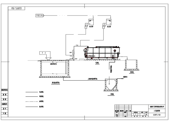
气浮图纸.png

四、气浮机成套设备应用领域:

 1、分离地表水中细小悬浮物、藻类、油类等微聚体;

 2、回收工业废水中有用物质等;

 3、代替二沉池分离和浓缩水中污泥等悬浮物;

 4、油田、煤矿、化工、塑料、纺织、印染、食品等行业。

mmexport1567940009710.jpg

五、气浮机成套设备注意事项及日常维护:

(1)清水泵、刮沫机要定期加油润滑。

(2)气浮池应视沉物多少,定期进行清洗。

(3)进入气浮机的污水必须加药,否则效果不理想。

(4)定期检查溶气罐上的安全阀是否工作可靠。

(5)要清洗水池内所有的赃物、杂物。

(6)对水泵等需要润滑部位进行加油润滑。

(7)调节加药装置到高状态使污水与悬浮物分离。

672641867024841935.jpg


气浮机成套设备现场案例 2020-6-27 本文被阅读 1029 次
< a href=" ">在线客服